“IF THESE WALLS COULD TALK…”
One can only imagine the stories this home would tell—of family gatherings, holidays spent by the fireplace, laughter echoing through open rooms, and years of memories made within these walls. Built in 1988, this 3-bedroom, 2-bath home with a 2-car garage is ready to begin its next chapter, and it’s calling for someone with vision, creativity, and a willingness to roll up their sleeves.
Situated on a generous .81-acre parcel, this property offers 1,802 square feet of living space and an abundance of outdoor room rarely found at this price point. Offered at ONLY $170,000, this home represents an outstanding opportunity for investors, renovators, and DIY enthusiasts looking to build equity and transform a well-located property into something truly special.
The location alone adds tremendous value. Perfectly positioned near Fort Cooper State Park, the Withlacoochee State Trail, shopping, dining, schools, and medical facilities, this home blends rural breathing room with everyday convenience. Whether you enjoy biking, hiking, nature walks, or simply being close to essential services, this setting delivers the best of both worlds.
As you approach the home, the expansive lot immediately stands out. With nearly a full acre of land, there is ample space for outdoor living, gardening, recreation, parking, and storage. The fenced yard adds both privacy and functionality, making it ideal for pets, children, or simply securing your outdoor space. There’s also plenty of room for boats, RVs, trailers, and other toys—perfect for those who enjoy an active lifestyle.
The property includes a detached 2-car garage, offering excellent flexibility. Whether used for vehicle storage, a workshop, hobby space, or additional storage, this structure adds real value and functionality. For buyers who need extra room beyond the main house, this is a major advantage.
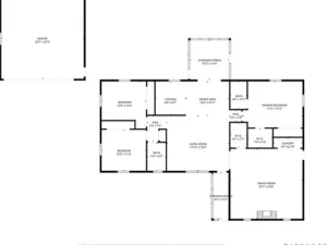
Step inside, and you’ll find a desirable split floor plan, a layout that continues to be highly sought after for its privacy and livability. The primary bedroom is separated from the guest bedrooms, making the home well-suited for families, guests, or multi-generational living. While the home is in need of a full renovation, the underlying layout offers a strong foundation for redesign and modernization.
The interior features an open-concept feel, with spaces flowing naturally from one to the next. A formal living room provides a welcoming entry point and flexible gathering space, while the family room offers a more relaxed atmosphere centered around a wood-burning fireplace. This fireplace serves as a natural focal point and, once restored, has the potential to become the heart of the home—perfect for cozy evenings and memorable gatherings.
An interior laundry area adds convenience and functionality, keeping daily chores easily accessible and eliminating the need for exterior laundry spaces. This feature, while often overlooked, plays an important role in everyday livability and adds to the home’s practical appeal.
The kitchen and dining areas are ready for reimagining. With the right updates, this space could be transformed into a modern, efficient, and inviting hub of the home. Whether your vision includes an open chef’s kitchen, a farmhouse-inspired design, or a contemporary layout, the existing footprint provides the flexibility to bring your ideas to life.
The three bedrooms offer ample space and natural light, each with the potential to become comfortable retreats once renovated. The two bathrooms are positioned to serve both residents and guests efficiently and present an opportunity to modernize with updated fixtures, finishes, and layouts that match today’s standards.
Outside, the home continues to impress with a screened porch, offering a shaded, breezy space to enjoy Florida’s weather while staying protected from the elements. With some updates, this porch could become a favorite spot for morning coffee, evening relaxation, or entertaining friends and family.
It’s important to be clear: THIS HOME IS IN NEED OF A FULL RENOVATION. This is not a cosmetic fixer. It will require significant updates and improvements throughout. However, that reality is precisely what creates this opportunity. For the right buyer, this property offers the chance to purchase at an attractive price and add value through thoughtful renovation, sweat equity, or investment-grade improvements.

Because of the home’s condition, CASH & CONVENTIONAL LOANS ONLY are accepted. This makes the property especially appealing to experienced buyers, contractors, flippers, and hands-on homeowners who understand renovation projects and are prepared to take them on.
From an investment standpoint, the numbers make sense. Properties with this much land, square footage, and location are becoming increasingly difficult to find—especially under the $200,000 mark. With smart planning and execution, this home has the potential to deliver strong returns, whether you plan to resell, rent, or occupy it yourself.
For owner-occupants, this is a chance to create a home tailored exactly to your tastes and needs. Instead of paying a premium for someone else’s finishes, you can design every detail—from flooring and cabinetry to paint colors and fixtures—resulting in a home that truly reflects your style and lifestyle.
The surrounding area further enhances the property’s appeal. Fort Cooper State Park offers beautiful natural scenery, historical significance, and outdoor recreation just minutes away. The Withlacoochee State Trail is a major draw for cyclists and walkers, providing miles of paved trail through scenic landscapes. Nearby shopping, dining, schools, and medical facilities ensure that daily necessities are always within easy reach.
This is a home with good bones, a great layout, and a fantastic location—all waiting for the right vision to unlock its full potential. It’s not perfect, and it’s not polished, but it’s full of possibility.
If these walls could talk, they’d likely tell stories of laughter, hard work, and years of life lived within them. Now, they’re ready for new stories to be written—by someone willing to see beyond the present condition and imagine what this home could become.
Bring your vision. Bring your tool belt. Bring your creativity. Whether you’re an investor looking for your next project or a buyer eager to build instant equity, this diamond in the rough offers a rare chance to create something truly special.
Opportunities like this don’t come around often—especially at this price, with this much land, and in this location. Schedule your showing today and see firsthand the potential waiting to be uncovered.
From Zillow